RENZO TESTORELLI
dipl. Architekt ETH/SIA
MAS Denkmalpflege und Umnutzung
Info
Projekte
Team
Kontakt
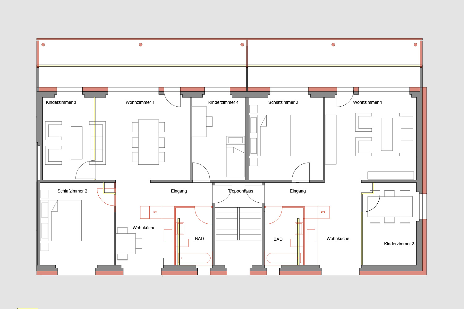
Bennenegg 9/11/13/15/17
| 2015-2017
Familie Shea-Fischer
Sanierung und Balkonerweiterung
Architektur
Denkmalpflege Schatzungen
Viscosistadt
Spinnereistrasse 5
|
CH-6020 Emmenbrücke
Tel: +41 41 360 25 22
|
Fax: +41 41 360 25 23
info@testorelli.ch
|
www.testorelli.ch